Incredible story of how two white anti-apartheid freedom



South Africa's notorious Pretoria Prison was fabled under the apartheid regime as a stronghold of steel and stone from which no prisoner could ever escape.

But there were just two men who held the key to freedom... and they made it out of wood.

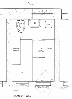
One quiet night on December 11 1979, anti-apartheid freedom fighter Tim Jenkin stretched his arm through his cell window and opened his cell door from the outside with a click.

In his hand he held a broomstick with a wooden key he had fashioned attached to its end, like a rudimentary crankshaft.






Now: Tim Jenkin holds the wooden key he fashioned to break out of Pretoria Prison, left, and his escape partner Stephen Lee, right









Then: The friends were supporters of Nelson Mandela’s ANC and had been locked up in the maximum-security jail for setting off harmless leaflet propaganda bombs in a bid to spread dissent against the apartheid regime in 1970s South Africa

He silently opened the door and stepped out into the corridor before tip-toeing to the next cell to set free his best friend and accomplice Stephen Lee.

'It was hugely emotional,' Stephen, now 62, told The Daily Mirror from his home in North London. 'This was going to let us out of the cells into the corridor.'


More...
'Marijuana was as common as pasta': Amanda Knox reveals her drug-filled days in Italy - and how she contemplated suicide while in prison
That’s a wrap! Pranksters cover friend’s Golf car with dozens of rolls of cling film

But it was only the beginning. Standing in the darkened hallway, the friends still had ten more steel-clad gates and many more ruthless armed guards between them and fresh air.

Staunch supporters of Nelson Mandela’s ANC, they had been locked up in the maximum-security jail for setting off harmless leaflet propaganda bombs in a bid to spread dissent against the apartheid regime in 1970s South Africa.






Maximum security: Prison officers stand guard in the excercise yard at Preoria Prison, left, and the cell door which Stephen and Tim broke through on the final stage of their daring prison break




How it worked: The pair had made the key out of wood and attached it to a broomstick like a rudimentary crankshaft to unlock the heavy cell door

Stephen had been sentenced to eight years and Tim to 12.

Describing the length of time they received as 'gut-wrenching', Stephen said: 'We were contemplating escape even before our conviction.'

The men were so determined to break free that they had asked relatives to smuggle them money for taxi fares to a train station. A third ­prisoner, Alex Moumbaris, was brought in to be part of the escape.

The idea for the makeshift key came to Stephen when he was lying on his bunk one evening and he remembered how he had learned to pick the lock of his back door of his home as a youngster.

'I got a piece of paper and, using a knife, pressed it into the lock [which] gave me the depth of the lock inside - the same measurement as the key.

'We were working in a carpentry workshop and I thought, "I wonder if we can make a key out of wood"'.


Daring: Jenkin stretched his arm out of his cell window from inside his cell to painstakingly unlock the door



How it worked: How their rudimentary crankshaft mechanism worked



Ingenious: They came up with a plan leave dummies - made from boiler suits stuffed with sheets - in their beds, sneak downstairs, hide in a cupboard and wait for the warder to go upstairs.


But they would have to do it right under the noses of the guards. So he smuggled the parts he needed from he workshop to his cell in a flask and began work in the dead of night.

By trial and error, he would try the key each day, using marks left on it when it jammed to work out which parts he needed to file. Within days it worked.


Over the next 18 months the pair would slip out each night after lights out to start work on the next door, then the one after that.









Painstaking: In all, the men had to fashion 10 keys for each of the doors to the outside world






The prison: South Africa's notorious Pretoria Prison was fabled under the apartheid regime as a stronghold of steel and stone from which no prisoner could ever escape

But it was the fifth and sixth doors that would test their nerves to the point of breaking. These were right next to the guards' office and they would surely be seen or heard if they tried passing through with anyone nearby.

So they came up with an ingenious plan leave dummies - made from boiler suits stuffed with sheets - in their beds, sneak downstairs, hide in a cupboard and wait for the warder to go upstairs.

Then they would get to work as they had done already on all the other doors behind them. One by one, they fashioned keys for them all.
'We were working in a carpentry workshop and I thought, "I wonder if we can make a key out of wood"'


Stephen Lee, escapee


All except the eleventh and final door, which they decided would be too risky for a dry run so it would have to be done once, on the fateful night of their actual escape.

'We got through the nine doors and then at the final door, we found we couldn’t open the lock,' said Stephen of D-day itself.


But they had a plan B. Employing a chisel which they had brought along, they proceeded to attack the lock with 'tremendous noise'.

Yet still, nobody appeared to notice.


'We were right underneath an armed guard but he didn’t see us. We walked out as if we had every right to be there,' Stephen said.

They used their money to pay for taxis and left South Africa and headed for England.

A huge police manhunt was launched to re-capture the fugitives, but by then they were already across the border en route to the UK.


Their incredible story is to be told tonight in Breakout on the National Geographic Channel.




Popular posts from this blog

Study Abroad USA, College of Charleston, Popular Courses, Alumni

Edinburgh Napier University Admission Process

It's 'baa'... not 'bark'! Lamo the sheep is so convinced he's a dog